Beschrijving

Te huur aangeboden 12 splinternieuwe kantoorruimtes op zicht locatie pal naast de snelweg A7. 

NOG SLECHTS ENKELE RUIMTES BESCHIKBAAR!

Het betreft hier de 1e verdieping van een recent gerealiseerd kwalitatief hoogstaand en modern bedrijfspand op het bedrijvenpark “De Woudfennen”. 

Dit bedrijvenpark is zeer goed bereikbaar met de auto en heeft een hoogwaardige uitstraling. Het gebouw is gelegen aan een vijverpartij heeft een spectaculaire glazen voorgevel en representatieve eigen entree voor de kantoorruimtes op de verdieping.

Bent u op zoek naar een moderne kantoorruimte(s) dan is dit een mooie kans voor het vestigen van uw bedrijf/kantoor. Diverse mogelijkheden qua inrichting van toepassing. 

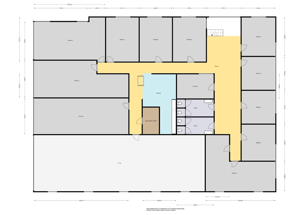
Diverse huuroppervlaktes vanaf 21m2 tot maximaal 71m2 beschikbaar.

Goede isolatie waarden, geheel voorzien van aluminium kozijnen met draai- kiepramen, airco installatie en glasvezel internet aanwezig.

Voorzieningen:
- Pantry met apparatuur.
- Toiletgroep (2x), luxe sanitair
- Kantoorindeling, elke ruimte afsluitbaar
- Vloerbedekking in de centrale ruimtes
- Systeem plafond met ledverlichting
- Verwarming en airconditioning, per ruimte regelbaar

Zekerheidstelling:
De borgstelling bedraagt 3 maanden huur te vermeerderen met servicekosten en btw. Deze borgstelling dient als zekerheid voor verhuurder en dient door huurder voor de ingangsdatum van het huurcontract te zijn afgegeven in de vorm van een waarborgsom.

Bijzonderheden

-	Nieuwbouw, aanvaarding is per direct mogelijk.
-	Bedrijfspand met moderne representatieve uitstraling.
-	Inrichting van de ruimtes nog vrij te bepalen.
-   Ruimtes zijn 24/7 toegankelijk
-	Zicht-locatie aan de snelweg Joure-Sneek.
-	Goede bereikbaarheid via snelweg A7, afslag 23 Joure-west.
-	Duurzame bouw, energielabel A++++.
-	Parkeren op eigen terrein mogelijk.

Neem contact met ons op, dan bespreken we graag alle mogelijkheden.

Henk Oosterloo tel. 06-11140070

Kenmerken